Rura prosta czarna do pieców na pellet 100/500 mm

Kod produktu - RP100/0,5-CZ1,2P

System przyłączy kominowych do pieców na pelet.
System służy do budowy przyłączy kominowych, wykonanych w całości ze stali czarnej o grubości 1,2 mm w gatunku DC01
wg normy PN-EN1856-2:2009.
Zalecany do odprowadzania spalin z kominków lub urządzeń grzewczych na pellet.
System Przyłączy Kominowych może być zastosowany jako przyłącze do kotłów odprowadzających spaliny, których temperatura
może dochodzić do 250 stopni C.
Dane techniczne systemu SKPK:
Maksymalna temperatura pracy ciągłej - 250 stopni C
Materiał - blacha czarna gat. DC01, gr. 1,2 mm
Zastosowanie
- Odprowadzanie spalin z piecyków na pellet
ZALETY:
- Bardzo prosty i szybki montaż
- Duża szczelność przewodu spalinowego
- Niższa cena niż w przypadku systemów z blachy kwasoodpornej

Połączenie kielichowe systemu SPKP.
Poszczególne elementy systemu kominowego łączone są przez włożenie jednej części elementu – nypla, w drugą roztłoczoną część elementu – kielicha.
Dzięki połączeniu kielichowemu otrzymujemy szczelną i sztywną konstrukcję przyłącza.
Sposób łączenia elementów umożliwia prawidłowy spływ ewentualnych skroplin po ściankach elementów przyłącza do miski.
Zastosowanie uszczelki z gumy silikonowej, znajdującej się w przetłoczeniu kielicha, zapewnia szczelność systemu przy nadciśnieniu spalin 200Pa.
Elementy są malowane proszkowo farbą wysokotemperaturową (do 400 stopni C) wewnątrz i na zewnątrz na kolor czarny mat.
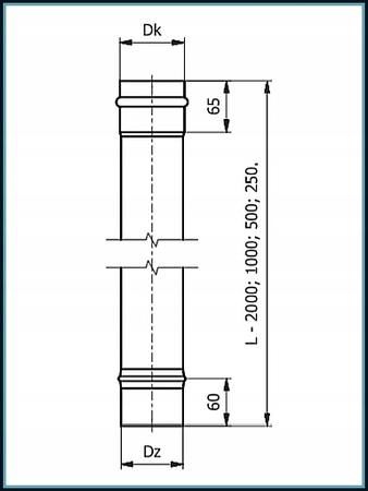
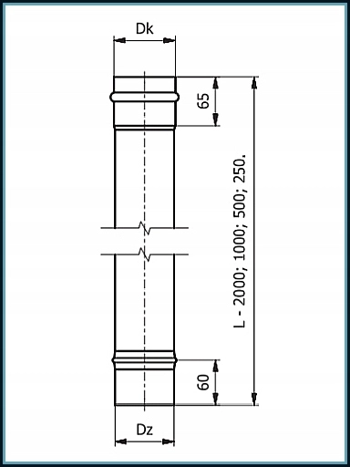
Opis rysunku i wymiary systemu SPKP:
- Nypel
- Kielich
- Uszczelka silikonowa
Wymiary:
- Dz - średnica zewnętrzna rury [mm]
- Dw - średnica wewnętrzna rury [mm]
- Dk - średnica wewnętrzna kielicha [mm]
DN - 80 mm DN - 100 mm
Dz - 80,1 mm Dz - 100,2 mm
Dw - 77,7 mm Dw - 97,8 mm
Dk - 81,1 mm Dk - 101,2 mm

✅ W załączniku jest do pobrania Karta katalogowa elementów systemu SPKP.






















