Wkład kominkowy powietrzny Spartherm Premium A-3RL-60h
- Wkład kominkowy z trzema szybami podnoszonymi do góry.
- Seria Premium - 0% ramy, 100% ognia.
Zamów przez telefon:
661 321 709(pon. - pt. 9-17)
Wkład kominkowy powietrzny Spartherm Premium A-3RL-60h
Kod produktu - Premium A-3RL-60h
Opis produktu:
Innowacyjne, bezramowe wkłady kominkowe skonstruowane w celu pozbycia się zewnętrznych elementów mocujących szkła. Specjalne bezramowe szyby, pozwalają cieszyć się ogniem bez ograniczeń. Podnoszone drzwiczki gwarantują niespotykaną wizję ognia. Dodatkowo, w zależności od modelu można uchylić jedną lub dwie szyby w podstawę. Schowana, zlicowana z blendą klamka potęguje wrażenia estetyczne paleniska oraz zapewnia lepszy widok ognia.
Wkłady kominkowe serii Premium to najwyższa jakość i zastosowana technologia. Możliwość doposażenia produktu w elektryczne podnoszenie drzwiczek SESAM-2, automatyczny kontroler procesu spalania S-Thermatik, a także moduł dodatkowego wyciągu spalin S-Kamatik-2.
Wkład kominkowy Spartherm to palenisko dwupłaszczowe, z zewnętrznym korpusem stalowym i wnętrzem wyłożonym szamotem. Wkład posiada szybę witro-ceramiczną, z systemem czystej szyby (kurtyna powietrzna). Kominek posiada doprowadzenie powietrza z zewnątrz. Sprawność paleniska to ilość energii powstałej w wyniku procesu spalania jaka zostaje w pomieszczeniu. Ma to bezpośrednie przełożenie na ilość spalanego opału.
Unikalny system podnoszenia i otwierania drzwiczek oraz wyjątkowa bezramkowa konstrukcja montażu szyby zapewnia maksymalną widoczność ognia, bezpieczeństwo
i komfort użytkowania. Dzięki opatentowanemu systemowi dociskającemu wszystkie cztery krawędzie szyby są dociskane w końcowej fazie zamykania drzwiczek. Szamot zastosowany w paleniskach ma za zadanie podwyższyć temperaturę spalania oraz skumulować ciepło, aby oddawać je po wygaszeniu ognia.
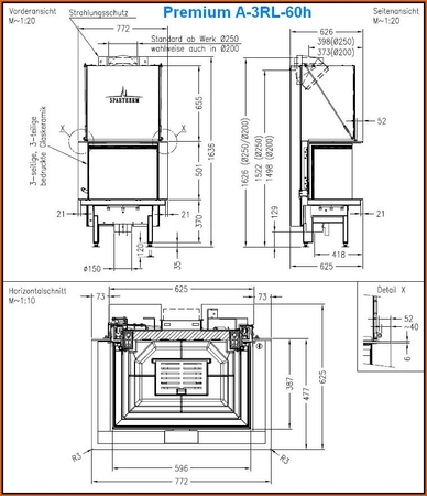
Dane techniczne:
| szerokość | - 772 mm |
| wysokość | - 1636 mm |
| głębokość | - 625 mm |
| szerokość frontu | - 596 mm |
| wysokość frontu | - 501 mm |
| szerokość bocznych drzwi | - 387 mm |
| średnica czopucha | - 200 mm lub 250 mm |
| moc nominalna | - 10 kW |
| sprawność | - 85 % |
| gwarancja | - 5 lat |
| klasa energetyczna | - A+ |
| spełnia wymogi Ekoprojektu | - tak |
Charakterystyka:
- materiały - stal, szamot i żeliwo
- otwieranie - drzwiczki otwierane do góry
- szyby - szyby z trzech stron
- popielnik - w kształcie kubełka
- wyposażenie - drzwi bez ramki i bez klamki
- opcje - czarny szamot, elektryczny napęd drzwi przesuwnych, S-Thermatik NEO (układ sterowania spalaniem)
Dołącz do Rodziny Spartherm i ciesz się 10 letnią gwarancją!
Spartherm opiekuje się klientem nie tylko przed zakupem, nie tylko w jego trakcie, ale także długo, długo po. Klient może do nas w każdej chwili zadzwonić i zapytać o poradę. Do tego po pierwszym sezonie grzewczym robimy przegląd kominka. Sprawdzamy, czy wszystko działa prawidłowo, doskonalimy palenie i odpowiadamy na wszelkie pytania klientów. Po prostu opiekujemy się klientem. Jak to w rodzinie. W „Rodzinie Spartherm”!
Przedłużając gwarancję z 5 do 10 lat na korpus wkładu kominkowego chcemy zapewnić naszym Klientom jeszcze dłuższe poczucie komfortu związanego z gwarancją.
UWAGA!
Produkt dostępny jest w kilku wariantach wykończenia. W celu wyboru odpowiedniego wariantu i dokonania zakupu prosimy o kontakt telefoniczny z naszym biurem.
Producent gwarantuje naprawę lub wymianę sprzętu do 60 miesięcy od daty zakupu. Skontaktuj się ze sklepem za pośrednictwem formularza reklamacji aby zamówić kuriera który odbierze sprzęt z Twojego domu.












