Wkład kominkowy z płaszczem wodnym Spartherm VARIA 1Vh H2O XXL
- Wkład kominkowy z podnoszonymi do góry drzwiczkami i z piękną wizją ognia.
- Wysoka sprawność wkładu gwarantuje mniejsze zużycie opału, a co za tym idzie mniejsze koszty eksploatacji kominka.
Zamów przez telefon:
661 321 709(pon. - pt. 9-17)
Wkład kominkowy z płaszczem wodnym typu gilotyna Spartherm VARIA 1Vh H2O XXL
Kod produktu - VARIA 1Vh H2O XXL
Opis produktu:
Wkład kominkowy z wkładem wodnym 15 kW Varia 1Vh H2O XXL firmy Spartherm charakteryzuje się bardzo wysoką sprawnością, przekraczającą 80%, dzięki czemu jest bardzo wydajny. Dzięki szerokim drzwiom komory spalania i eleganckiej czarnej ramie kominek wygląda jak dzieło sztuki w Twoim salonie. Zintegrowany wymiennik ciepła z płaszczem wodnym wraz z termicznym zabezpieczeniem odpływu, zaworem odpowietrzającym, szczotką czyszczącą i rusztem pompy zapewnia bezpieczeństwo. Wodny wymiennik ciepła z termicznym zabezpieczeniem odpływu i opatentowanym wewnętrznym obiegiem grawitacyjnym chroni przed uderzeniami pary w przypadku awarii zasilania. Spaliny są szybko odprowadzane przez automatyczną klapę obejściową w fazie nagrzewania.
Cechy szczególne wodnego wkładu kominkowego Varia 1Vh H2O XXL:
✅ Zintegrowany wodny wymiennik ciepła
Model Varia 1Vh H2O XXL jest dostarczany ze zintegrowanym wymiennikiem ciepła z płaszczem wodnym, w tym termicznym zabezpieczeniem na wylocie, zaworem odpowietrzającym, szczotką do czyszczenia i rusztem pompy.
✅ Drzwi komory spalania podnoszone do góry
Wszystko, co musisz zrobić, to przesunąć drzwi do góry, aby ułatwić przeładowanie.
✅ Drzwi z elegancką czarną obwódką
Patrzysz na grę płomieni jak na obraz – elegancka, czarna ramka dopełnia format szyby.
✅ Szybkie odprowadzanie spalin w fazie nagrzewania
Automatyczna klapa obejściowa jest otwierana, gdy wkład kominkowy nie jest jeszcze wystarczająco gorący, aby odprowadzić spaliny przez wodę.
Aprobaty dla wodnego wkładu kominkowego Varia 1Vh H2O XXL:
- DIN EN 13229
- BImSchV poziom II
- Dopuszczenie dla Austrii zgodnie z 15a B-VG
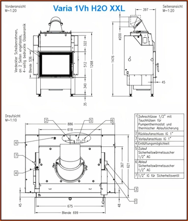
Dane techniczne:
| szerokość drzwi | - 671 mm |
| wysokość drzwi | - 513 mm |
| moc nominalna | - 21 kW |
| średnia moc do wody | - 15 kW |
| zakres mocy grzewczej | - 14-22 kW |
| sprawność | - >80% |
| szyba | - płaska |
| otwieranie drzwiczek | - do góry |
| średnica czopucha | - 200 mm |
| waga | - 389 kg |
| Ekoprojekt | - tak |
| Klasa energetyczna | - A+ |
Rysunek z wymiarami:

Wkład kominkowy Spartherm to palenisko dwupłaszczowe, z zewnętrznym korpusem stalowym, i wnętrzem wyłożonym szamotem. Wkłady kominkowe Spartherm posiadają dopracowany system podziału powietrza, który jest w płynny sposób regulowany. Podczas rozpalania powietrze podawane jest pod popielnikiem oraz na szybę, po zamknięciu powietrza podawane jest ono tylko na tylną ścianę. Objawia się to tzw. dopalaniem spalin, co skutkuje wysoką sprawnością urządzenia. Sprawność paleniska to ilość energii powstałej w wyniku procesu spalania jaka zostaje w pomieszczeniu i ma ona bezpośredni wpływ na ilość spalanego opału.
Unikalny system podnoszenia i otwierania drzwiczek oraz wyjątkowa bezramkowa konstrukcja montażu szyby zapewniają maksymalną widoczność ognia, bezpieczeństwo i komfort użytkowania. Dzięki opatentowanemu systemowi dociskającemu, wszystkie cztery krawędzie szyby są dociskane w końcowej fazie zamykania drzwiczek. Zastosowany w paleniskach szamot ma za zadanie podwyższyć temperaturę spalania oraz skumulować ciepło, aby oddawać je po wygaszeniu ognia.
WYOBRAŹCIE SOBIE PAŃSTWO, ŻE WASZA CIEPŁA WODA POCHODZI Z KOMINKA!
Ciepła woda z kominka? Myślicie, że to niemożliwe? Większa część naszego bezpośredniego lub pośredniego zapotrzebowania na wodę, to woda podgrzana. Tym ważniejsze jest to, żebyście Państwo istniejącą energie przekształcili w gorącą wodę. Wanna gorącej wody, oczyszczający prysznic lub po prostu przyjemne ciepło dla stóp pochodzące z ogrzewania podłogowego, wszystko jest zasilane ciepłą wodą. I to każdego dnia...
Dołącz do Rodziny Spartherm i ciesz się 10 letnią gwarancją!
Spartherm opiekuje się klientem nie tylko przed zakupem, nie tylko w jego trakcie, ale także długo po dokonaniu zakupu. Klient może do nas w każdej chwili zadzwonić i zapytać o poradę. Do tego po pierwszym sezonie grzewczym robimy przegląd kominka! Sprawdzamy, czy wszystko działa prawidłowo, doskonalimy palenie i odpowiadamy na wszelkie pytania klientów. Po prostu opiekujemy się klientem - jak to w rodzinie. W „Rodzinie Spartherm”!
Przedłużając gwarancję z 5 do 10 lat na korpus wkładu kominkowego chcemy zapewnić naszym Klientom jeszcze dłuższe poczucie komfortu związanego z gwarancją.
✅ W załączniku znajdują się do pobrania Karta Techniczna produktu.
Producent gwarantuje naprawę lub wymianę sprzętu do 60 miesięcy od daty zakupu. Skontaktuj się ze sklepem za pośrednictwem formularza reklamacji aby zamówić kuriera który odbierze sprzęt z Twojego domu.













