Wkład kominkowy z płaszczem wodnym Spartherm VARIA A-FDh H2O
- Tunelowy przezroczysty wkład komikowy z płaszczem wodnym będzie atrakcją każdego salonu.
- Dzięki niemu ścianki działowe przyjmują nowy, niezwylke atrakcyjny wygląd.
Zamów przez telefon:
661 321 709(pon. - pt. 9-17)
Wkład kominkowy z płaszczem wodnym typu tunel Spartherm VARIA A-FDh H2O
Kod produktu - VARIA A-FDh H2O
Opis produktu:
VARIA A-FDh H2O-4S to wkład kominkowy dzięki któremy każda ścianka działowa przyciąga wzrok. Ekskluzywne drzwi o szerokości 108 cm elegancko inscenizują grę płomieni. Czarna ramka na szkle sprawia, że ogień w kominku wygląda jak obraz i sprawia, że każde pomieszczenie nabiera niezapomnianego klimatu. Ten tunelowy przezroczysty kominek będzie niezwykłą atrakcją Twojego salonu.
Dzięki zintegrowanemu wymiennikowi ciepła z płaszczem wodnym z termicznym zabezpieczeniem odpływu i opatentowanym wewnętrznym obiegiem grawitacyjnym Varia A-FDh H2O chroni przed uderzeniami pary w przypadku awarii zasilania. Automatyczna klapa obejściowa zapewnia szybkie odprowadzanie spalin podczas ogrzewania.
Dzięki podwójnemu przeszkleniu Varia A FDh H2O oferuje współczynnik wydajności po stronie wody ok. 70%. W porównaniu z urządzeniami innych producentów to najwyższa wartość. Dzięki temu urządzenie idealnie nadaje się do zastosowania w domach niskoenergetycznych, np. zasobnik buforowy zapobiega nadmiernemu nagrzewaniu się pomieszczenia instalacyjnego
Cechy szczególne wkładu kominkowego Varia A-FDh H2O-4S:
✅ Wizja ognia w narożnym kominku
Dzięki Varia A-FDh H2O-4S oglądasz ogień w cudownej perspektywie naroznego kominka.
✅ Drzwi z elegancką czarną obwódką
Na grę płomieni patrzysz jak na obraz – elegancka, czarna ramka dopełnia kształt tafli.
✅ Drzwi komory spalania można podnosić
Wygodne i bezproblemowe otwieranie komory spalania.
Aprobaty dla wodnego wkładu kominkowego Varia A-FDh H2O-4S:
- DIN EN 13229
- BImSchV poziom II
- Dopuszczenie dla Austrii zgodnie z 15a B-VG
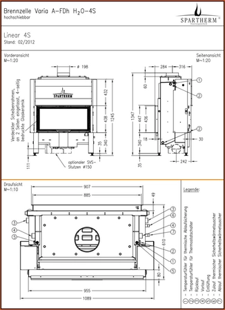
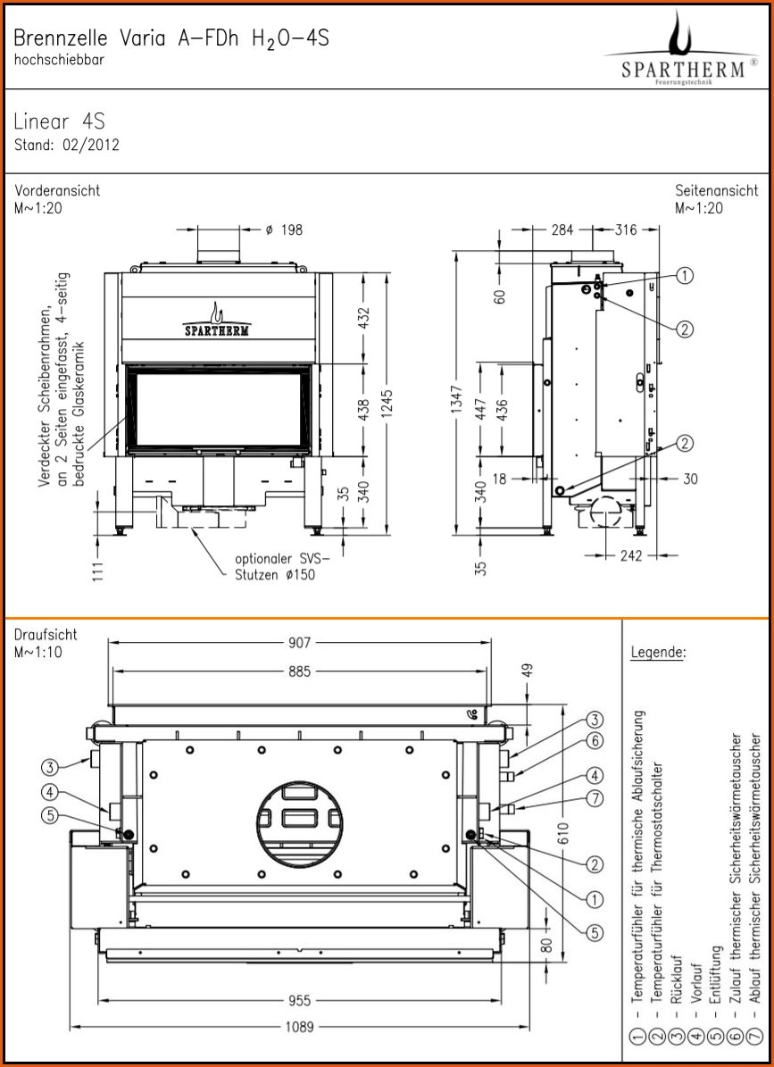
Dane techniczne:
| szerokość drzwi z przodu | - 881 mm |
| wysokość drzwi z przodu | - 440 mm |
| szerokość drzwi z tyłu | - 888 mm |
| wysokość drzwi z tyłu | - 436 mm |
| średnica czopucha | - 200 mm |
| moc nominalna | - 10,4 kW |
| sprawność | - 80% |
| szyba | - płaska vis-a-vis |
| otwieranie drzwiczek | - do góry |
| Ekoprojekt | - tak |
Rysunek z wymiarami:

Wkład kominkowy Spartherm to palenisko dwupłaszczowe, z zewnętrznym korpusem stalowym, i wnętrzem wyłożonym szamotem. Wkłady kominkowe Sparther posiadają dopracowany system podziału powietrza, który jest w płynny sposób regulowany. Podczas rozpalania powietrze podawane jest pod popielnikiem oraz na szybę, po zamknięciu powietrza podawane jest ono tylko na tylną ścianę. Objawia się to tzw. dopalaniem spalin, co skutkuje wysoką sprawnością urządzenia. Sprawność paleniska to ilość energii powstałej w wyniku procesu spalania jaka zostaje w pomieszczeniu i ma ona bezpośredni wpływ na ilość spalanego opału.
Unikalny system podnoszenia i otwierania drzwiczek oraz wyjątkowa bezramkowa konstrukcja montażu szyby zapewniają maksymalną widoczność ognia, bezpieczeństwo i komfort użytkowania. Dzięki opatentowanemu systemowi dociskającemu, wszystkie cztery krawędzie szyby są dociskane w końcowej fazie zamykania drzwiczek. Zastosowany w paleniskach szamot ma za zadanie podwyższyć temperaturę spalania oraz skumulować ciepło, aby oddawać je po wygaszeniu ognia.
WYOBRAŹCIE SOBIE PAŃSTWO, ŻE WASZA CIEPŁA WODA POCHODZI Z KOMINKA!
Ciepła woda z kominka? Myślicie, że to niemożliwe? Większa część naszego bezpośredniego lub pośredniego zapotrzebowania na wodę, to woda podgrzana. Tym ważniejsze jest to, żebyście Państwo istniejącą energie przekształcili w gorącą wodę. Wanna gorącej wody, oczyszczający prysznic lub po prostu przyjemne ciepło dla stóp pochodzące z ogrzewania podłogowego, wszystko jest zasilane ciepłą wodą. I to każdego dnia...
Dołącz do Rodziny Spartherm i ciesz się 10 letnią gwarancją!
Spartherm opiekuje się klientem nie tylko przed zakupem, nie tylko w jego trakcie, ale także długo po dokonaniu zakupu. Klient może do nas w każdej chwili zadzwonić i zapytać o poradę. Do tego po pierwszym sezonie grzewczym robimy przegląd kominka! Sprawdzamy, czy wszystko działa prawidłowo, doskonalimy palenie i odpowiadamy na wszelkie pytania klientów. Po prostu opiekujemy się klientem - jak to w rodzinie. W „Rodzinie Spartherm”!
Przedłużając gwarancję z 5 do 10 lat na korpus wkładu kominkowego chcemy zapewnić naszym Klientom jeszcze dłuższe poczucie komfortu związanego z gwarancją.
✅ W załączniku znajdują się do pobrania Karta Techniczna produktu.
Producent gwarantuje naprawę lub wymianę sprzętu do 60 miesięcy od daty zakupu. Skontaktuj się ze sklepem za pośrednictwem formularza reklamacji aby zamówić kuriera który odbierze sprzęt z Twojego domu.
















