Wkład kominkowy powietrzny tunel Hitze ARDENTE DUO 90x41.DSS
- Linia ARDENTE jest najbardziej zaawansowaną technicznie linią wkładów powietrznych firmy HITZE.
- Charakteryzuje się głęboką prostokątną bardzo ładowną komorą spalania.
- Jeśli szukasz sposobu, aby utrzymać ciepło tej zimy, nie szukaj dalej niż ARDENTE!
Zamów przez telefon:
661 321 709(pon. - pt. 9-17)
Wkład kominkowy powietrzny tunel Hitze ARDENTE DUO 90x41.DSS
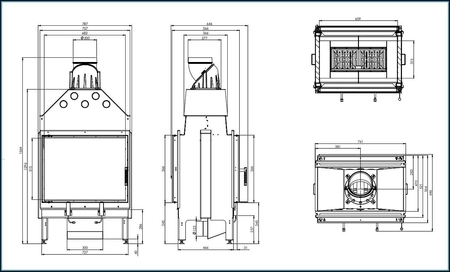
Kod produktu - ARD90x41.DSS
Opis produktu:
Linia ARDENTE jest najbardziej zaawansowaną technicznie linią wkładów powietrznych firmy HITZE.
Charakteryzuje się głęboką prostokątną komorą spalania dającą możliwość dużych załadunków.
Nowością jest zastosowanie wygodnego w użyciu uchylnego żeliwnego rusztu, który ułatwia dbanie o czystość paleniska.
Dodatkowym ułatwieniem w obsłudze jest innowacyjny system dopowietrzenia komory spalania ze zintegrowanymi
przepustnicami pozwalającymi na płynną regulację dopływu powietrza.
Standardowo wkłady te wyposażono w dekoracyjne szyby DECOR, o których czystość dba kurtyna powietrzna zasilana
świeżym powietrzem z zewnątrz (tzw. system czystej szyby). Zastosowano również zmodyfikowany mechanizm gilotyny
z dostępem serwisowym.
Dla celów dodatkowej akumulacji ciepła zastosowano masywny żeliwny czopuch z płynną regulacją 360 stopni, potrzebną
przy zmianie kąta wpięcia rur spalinowych do przewodu kominowego.
Do każdego modelu dostępne są standardowe maskownice 4/4 na front i tył wkładu, których zastosowanie nie tylko
przyśpiesza wykonanie obudowy, ale także obniża jej koszt.
Kominki z linii ARDENTE dzięki wysokiej sprawności oraz innowacyjnym rozwiązaniom konstrukcyjnym spełniają restrykcyjne
wymagania unijnej dyrektywy Ecodesign oraz niemieckiej normy BImSchV 2.
Dane techniczne:
- Moc grzewcza 18 kW.
- Wkład typu tunel do zabudowy dwustronnej lub wyspowej.
- Wkład z powiększoną, głęboką prostokątna komorą spalania dająca możliwość dużych załadunków.
- Uchylny żeliwny ruszt dla wygody czyszczenia paleniska paleniska.
- Dwie żaroodporne dekoracyjne szyby DECOR w standardzie (temperatura pracy do 800 stopni).
- Możliwość zamówienia dedykowanych maskownic (stal malowana proszkowo w kolorze wkładu).
- Drzwi stalowe wykonane ze specjalnego profila gwarantującego sztywność i wytrzymałość na wysoka temperaturę.
- Elementy wkładu produkowane są przy pomocy nowoczesnych urządzeń CNC (Laser 2D, 3D, prasy krawędziowe).
- Płaszcz wkładu wykonany ze stali kotłowej gatunku P265GH według EN 10028-2.
- Spełnia normy BImSchV II i ECODESIGN. (15a B-VG nie spełnia, wymagana sprawność powyżej 80%).
- Zgodnie z wymogami dyrektywy Ekodesign na terenie państwa członkowskich UE: "Ten produkt nie może służyć jako podstawowe źródło ogrzewania".
Producent gwarantuje naprawę lub wymianę sprzętu do 60 miesięcy od daty zakupu. Skontaktuj się ze sklepem za pośrednictwem formularza reklamacji aby zamówić kuriera który odbierze sprzęt z Twojego domu.










